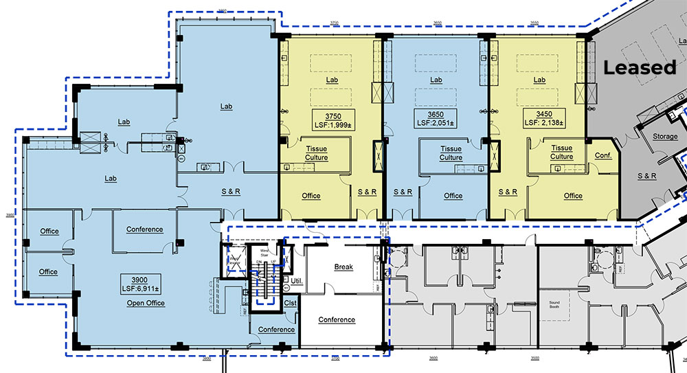
New! 2,000 SF to 13,000 SF Labs

Advance your science in a brand-new lab suite in Beverly

Join a thriving community of innovative life sciences companies on the North Shore. The Dunham Ridge campus offers easy highway access, new construction, and room to grow, all at a fraction of the rates in Boston and Cambridge.

Features:


  • Multiple floor plan configurations available
  • Ability to combine suites for larger footprint
  • Dedicated office area with full-panel glass and high-end finishes
  • Collaborative environment with shared conference room and break area

Each BSL1/BSL2 and General Chemistry Lab Includes:


  • Epoxy painted walls
  • Vinyl-faced ceiling tiles
  • Vinyl composition tile floors
  • Acid neutralization tanks at sinks
  • Make-up air and exhaust systems
  • Emergency shower/eyewash station(s)
  • Ceiling-mounted exhaust drops and electrical feeds
  • Chemical fume hood(s) with solvent and acid storage
  • Steel lab benches with resin countertops and adjustable reagent shelves
View floor plan

Join the growing life science and tech cluster at Dunham Ridge:

Building and Campus Features:

  • Magical Beginnings learning center
  • On-site fitness room and showers for client use
  • Numerous life science neighbors and networking opportunities
  • The North Shore's newest business campus, directly fronting Route 128
  • Situated on picturesque Norwood Pond, surrounded by hiking and biking trails
  • Numerous neighborhood amenities, including full-service restaurants, cafes, sandwich shops, banks, specialty markets, fitness facilities, entertainment, and pharmacies
Contact a Cummings lab specialist today!
Call 978-922-9000 or email beverlyleasing@cummings.com

View Additional Featured Suites in 11 Boston Suburbs


Andover | Beverly | Burlington | Marlborough | Medford | Somerville | Stoneham | Sudbury | Wakefield | Wilmington | Woburn