Corner Office at Landmark Business Campus
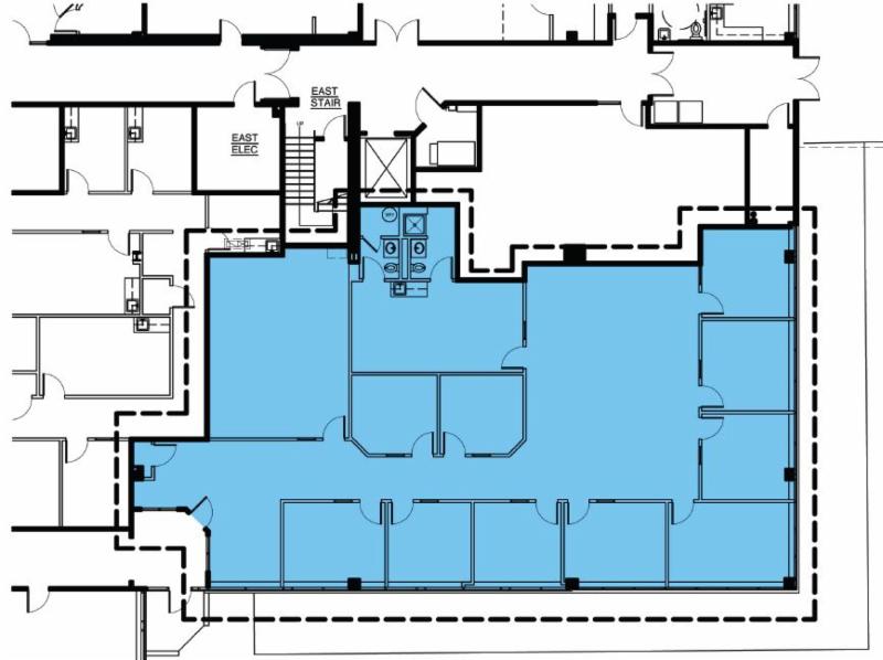
500 Cummings Center, Suite 1750 | 4,749 SF


FEATURES
  • Modern Class A building located adjacent to covered parking garage
  • First-floor corner suite with 10 offices, conference room, break room, and in-suite shower
  • Extensive window line with scenic views of Upper Shoe Pond, fountain, and Healing Garden
LIVE.  WORK. PLAY .
  • The North Shore's premier business address for more than 560 firms
  • Picturesque campus offering walking trails, picnic areas, and healing garden
  • Numerous on-site amenities, including dining, fitness, daycares, medical offices, attorneys, real estate brokers, CPA's, US Post Office, and entertainment facilities 
  • Experience Live.Work.Play. at Cummings Center
Contact
Steve Drohosky | 978-922-9000

View more spaces for lease on  our website.