Prime location just off I-93 and I-95 at West Cummings Park
Join the vibrant and fast-growing life sciences community in Woburn at less than half the cost of leasing in Boston and Cambridge. In today's hot lab market, these spaces will lease fast!
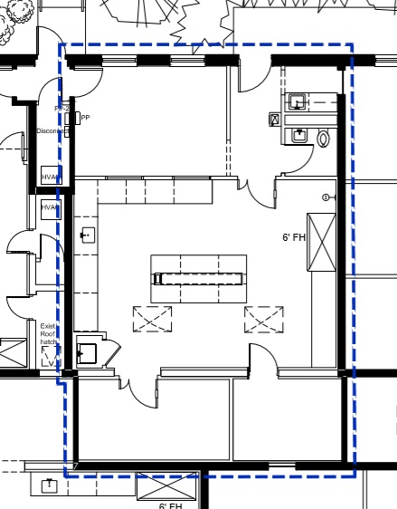
West Cummings Park: 1,333 - 2,751 SF
Each suite offers:

  • 6' fume hood
  • Ample bench top and cabinets
  • Private restroom in each suite
  • Amenity-rich campus with fast-growing life sciences community
Suite 390 - 1,333 SF
Suite 395 - 1,418 SF
These adjacent suites can be combined for total 2,751 SF.
Local Dining and Amenities
Woburn is bustling with many amenities and appealing dining options within Cummings Park and the surrounding area. The new Woburn Village lifestyle center offers shopping and dining options, and the Lord Hobo brewery is just a few minutes from the Cummings campus.
Join these and many other Cummings life sciences clients in Woburn:
Contact John Halsey at 781-932-7039 or sales@cummings.com

View other featured suites at Cummings.com